





1 Bedroom 1 Bathroom 1 Reception
Flat/Apartment - Leasehold
7 Photos
Wellingborough
Unfurnished
£720 Deposit
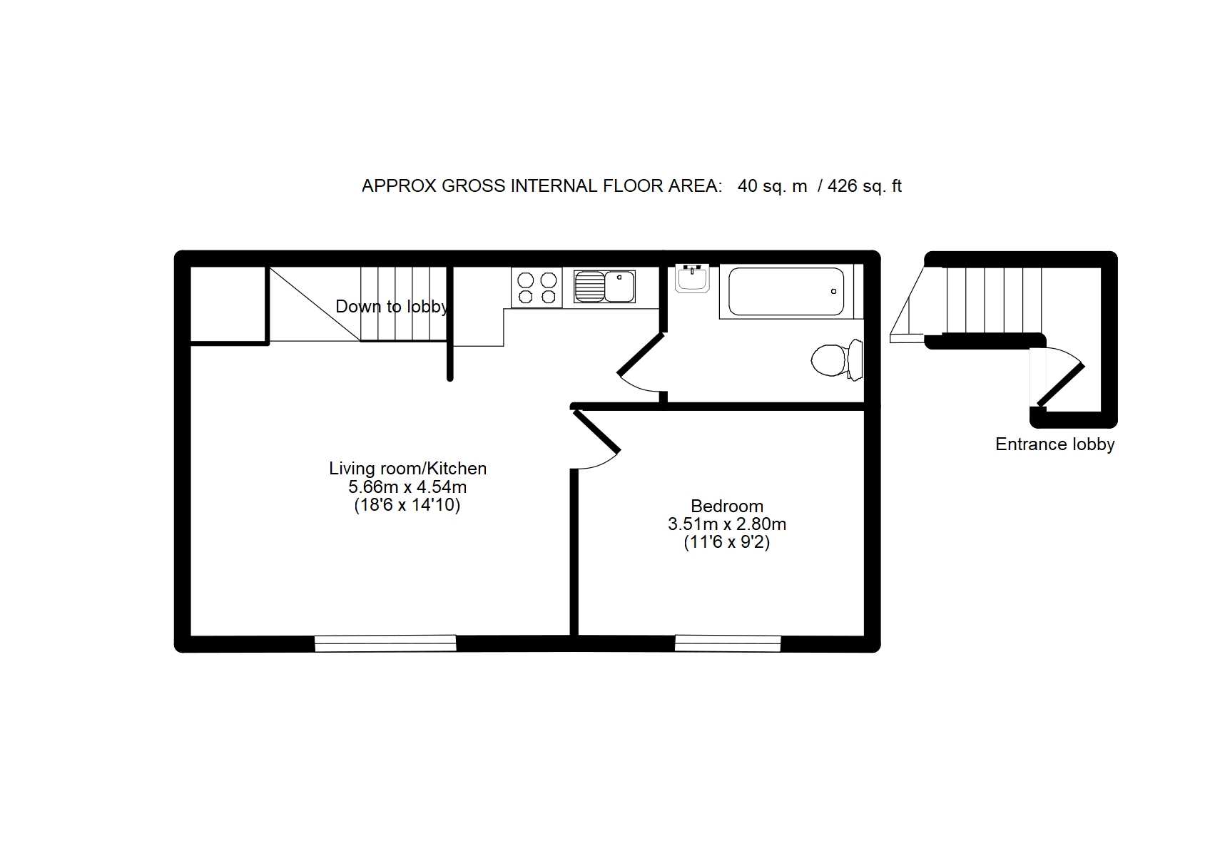
***READY NOW***FULL VIDEO TOUR AVAILABLE***EXCELLENT LOCATION** ***TOP FLOOR 1 BEDROOM APARTMENT*** WYCH Estate Agents are delighted to offer this one bedroom apartment to let. Located on the High Street offering swift access to Wellingborough town centre and local amenities. The property comprises of a small first floor hallway giving access to a staircase to the second floor living area with adjoining kitchen, bathroom complete suite with hair mixer shower and one double bedroom. The property also benefits from gas radiator central heating, UPVC double-glazing, modern fittings and neutral decorative finish throughout.
Full tour available on our WYCH You Tube channel.
Free public parking opposite the apartment block.
First months rent & deposit:
Please note in order to secure this property we will require a holding fee of £144.00, the equivalent of one weeks rent.
Prior to paying the holding fee we will require photographic identification for each applicant. Please visit our office in order for copies to be made. Once copies have been taken we will then confirm the bank details for the holding fee to be paid into.
UK Citizen: A valid and current Passport or UK Driving Licence.
Non UK Citizen: Passport with UK Visa: If you are not a UK citizen, you'll need to provide documents proving your right to reside. Please ensure these documents are up-to-date and valid.
The deposit is £720.00, the equivalent of five weeks rent.
Council tax: A
EPC: D (expires 27/10/2031)
About us
Established in 1992, WYCH Estate Agents was founded on traditional values such as honesty, integrity, and an exceedingly high level of professional competence and customer service. These are qualities which we strive to uphold today, and they have enabled us to become a respected and successful estate agency. We are a dynamic team of experienced industry experts who utilise a mix of traditional and modern sales and marketing tools to achieve the right results where other Agents may sometimes fail. We are extremely passionate about people and property and our team is dedicated to achieving our clients goals. If you are looking to sell or rent your property, or indeed establish or expand a property portfolio, please do not hesitate to contact us for some friendly and professional advice.
Please be advised that our referencing procedure includes carrying out credit checks, obtaining employment/accountant and previous Landlord references. If you have adverse credit (CCJs) then please notify us prior to arranging a viewing.
This marketing material is strictly for your own personal use. Any alteration, re-publication, re-distribution, re-transmission or otherwise to make our marketing material available to any other party on any website, bulletin board, printed press or in any media without our prior written consent is strictly prohibited. Redress Scheme: The Property Ombudsman - Membership Number: E523. Client Money Protection: Client Money Protect (CMP) - Membership Number: CMP003119.
Lounge 4.50m (14'9") x 3.81m (12'6")
Adjoining Kitchen 2.54m (8'4") x 1.73m (5'8")
Bedroom 3.51m (11'6") x 2.87m (9'5")
Bathroom 2.51m (8'3") x 1.45m (4'9")
Reference: BWL1909
Disclaimer
These particulars are intended to give a fair description of the property but their accuracy cannot be guaranteed, and they do not constitute an offer of contract. Intending purchasers must rely on their own inspection of the property. None of the above appliances/services have been tested by ourselves. We recommend purchasers arrange for a qualified person to check all appliances/services before legal commitment.
Contact Wych for more details