





2 Bedrooms 1 Bathroom 1 Reception
Flat/Apartment - Leasehold
7 Photos
Wellingborough
***TOP FLOOR APARTMENT***LONG LEASE TERM OF CIRCA 163 YEARS REMAINING***TWO DOUBLE BEDROOMS*** WYCH Estate Agents are delighted to present this well positioned two bedroom apartment for sale. Situated on the sought after north side of Wellingborough town. The property is conveniently located just off the junction of Brickhill Road and Brickhill Mews. Everyday amenities are within easy reach, with supermarkets, retail outlets, and essential services nearby. For those who commute, Wellingborough train station is only a short distance away, providing direct rail connections into London and beyond. Excellent road links are also on hand, with the A45 dual carriageway offering swift access to the M1 (Junction 15), surrounding towns, and the ever popular Rushden Lakes retail and leisure complex.
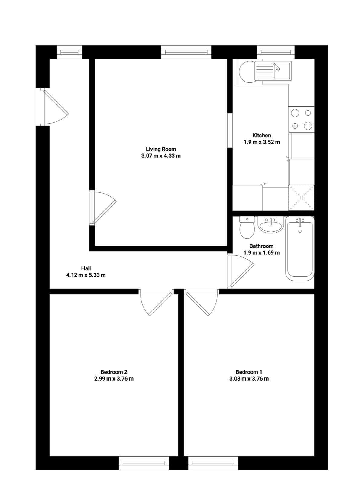
The accommodation comprises an entrance hall leading to a bright living room, a fitted kitchen equipped with an electric hob and oven, two well proportioned bedrooms, and a bathroom complete suite with shower.
Further benefits include UPVC double glazed windows, electric heating throughout and a dedicated parking space.
This property represents an excellent opportunity for first time buyers or investors seeking a well located property with strong rental potential.
Please note, the property is currently occupied on an Assured Shorthold Tenancy. Please contact our office for further information.
Council tax: A
EPC: D (expires 30/05/2033)
Lease Term: Circa 163 years
Service Charge including insurance: Circa £1713 per annum
The property is of brick and tile construction.
Electric is installed at the property. There is no gas.
Tenure: Leasehold
Entrance hall
Living room
Kitchen
Bedroom 1
Bedroom 2
Bathroom
About us
Established in 1992, WYCH Estate Agents was founded on traditional values such as honesty, integrity, and an exceedingly high level of professional competence and customer service. These are qualities which we strive to uphold today, and they have enabled us to become a respected and successful estate agency. We are a dynamic team of experienced industry experts who utilise a mix of traditional and modern sales and marketing tools to achieve the right results where other Agents may sometimes fail. We are extremely passionate about people and property and our team is dedicated to achieving our clients goals. If you are looking to sell or rent your property, or indeed establish or expand a property portfolio, please do not hesitate to contact us for some friendly and professional advice.
This marketing material is strictly for your own personal use. Any alteration, re-publication, re-distribution, re-transmission or otherwise to make our marketing material available to any other party on any website, bulletin board, printed press or in any media without our prior written consent is strictly prohibited.
***Please note that some images have been taken with a wide angle lens***
Reference: BWS1000705
Disclaimer
These particulars are intended to give a fair description of the property but their accuracy cannot be guaranteed, and they do not constitute an offer of contract. Intending purchasers must rely on their own inspection of the property. None of the above appliances/services have been tested by ourselves. We recommend purchasers arrange for a qualified person to check all appliances/services before legal commitment.
Contact Wych for more details