












2 Bedrooms 1 Bathroom 1 Reception
Bungalow - Freehold
14 Photos
Wellingborough
***CHAIN FREE***PLEASANT LOCATION***CONSERVATORY***FULL TOUR AVAILABLE ON OUR WYCH YOU TUBE CHANNEL*** WYCH Estate Agents are delighted to present this attractive semi detached bungalow for sale, ideally positioned within a highly sought after area of the town. The property enjoys a pleasant setting within easy reach of Sainsbury’s supermarket, Park Farm Industrial Estate, and excellent transport links via the A45 carriageway. Situated just off the junction of Ruskin Avenue and Stanwell Way, this bungalow offers the perfect balance of accessibility and a peaceful residential environment.
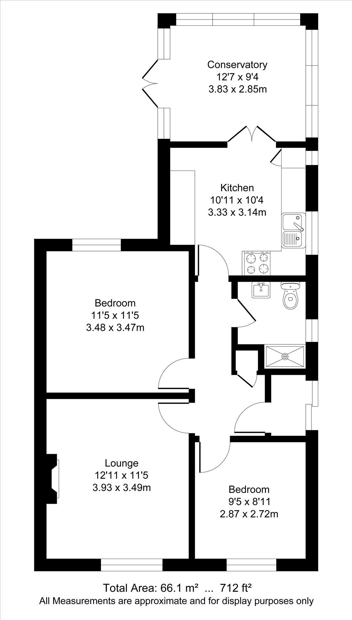
The well balanced accommodation briefly comprises an entrance porch, an inner hallway, a well proportioned fitted kitchen with a pantry, a spacious living room complete with a feature fireplace. Further accommodation includes a modern shower room, two bedrooms and a conservatory overlooking the rear garden.
This charming bungalow offers a generous rear garden ideal for keen gardeners, outdoor entertaining, or providing ample space for children to play.
Additional benefits include electric heating, UPVC double glazed window units, an aluminium store and a timber garage/workshop which can be accessed from the garden as well as the rear via Pope Road.
Early viewing is highly recommended to fully appreciate the appeal this bungalow has to offer.
Council tax band: B
EPC: E (Expires 16/09/2029)
Entrance porch
Brick walls, white coated aluminium framed sliding entrance door, door leading to the inner hallway, fitted coconut matting.
Inner hallway
Light pendant, hatch frame and cover to loft area, switch plate and sockets, cupboard housing the consumer unit, linen store housing the water cylinder and shelving, electric storage heater, doors leading to the living room, shower room, kitchen and two bedrooms, fitted carpet.
Living room
Light pendant, ceiling mounted carbon monoxide detector, switch plate and sockets, electric storage heater, UPVC double glazed window units to front aspect, feature fireplace, fitted carpet.
Bedroom one
Light pendant with bulb, switch plate and sockets, electric storage heater, UPVC double glazed window units to rear aspect, fitted carpet.
Bedroom two
Light pendant with bulb, switch plate and double socket, electric storage heater, UPVC double glazed window units to front aspect, fitted carpet.
Shower room
Ceiling mounted light globe, ceiling mounted extractor, wall mounted electric heater, wash hand basin with aluminium taps, tiled splashback, WC, wall mounted Triton electric shower unit with lead and shower head on riser, tiled splash backs to shower area, tiled windowsill, UPVC double glazed window units to side aspect, fitted vinyl floor covering.
Kitchen
Ceiling mounted fluorescent light strip, ceiling mounted heat detector, wall mounted extractor fan, switch plates and sockets, roll top work surfaces with inset stainless steel sink and drainer with aluminium taps, free standing double fronted oven with electric hob, wall mounted flush faced to cupboard doors with aluminium handles, matching cupboards and drawer below work surfaces, tiled splash backs, tiled windowsill, UPVC double glazed window units to side aspect, doors leading to pantry cupboard, double doors leading to conservatory, fitted laminate floor covering.
Conservatory
UPVC double glazed window units, UPVC double glazed French doors leading to the garden, sockets.
Garden
See images
Garage/Workshop
Access via the side door from the garden and rear access via Pope Road.
The property is of brick and tile construction.
Electric is installed at the property.
Tenure: Freehold
About us
Established in 1992, WYCH Estate Agents was founded on traditional values such as honesty, integrity, and an exceedingly high level of professional competence and customer service. These are qualities which we strive to uphold today, and they have enabled us to become a respected and successful estate agency. We are a dynamic team of experienced industry experts who utilise a mix of traditional and modern sales and marketing tools to achieve the right results where other Agents may sometimes fail. We are extremely passionate about people and property and our team is dedicated to achieving our clients goals. If you are looking to sell or rent your property, or indeed establish or expand a property portfolio, please do not hesitate to contact us for some friendly and professional advice.
This marketing material is strictly for your own personal use. Any alteration, re-publication, re-distribution, re-transmission or otherwise to make our marketing material available to any other party on any website, bulletin board, printed press or in any media without our prior written consent is strictly prohibited.
***Please note that some images have been taken with a wide angle lens***
Reference: BWS1000703
Disclaimer
These particulars are intended to give a fair description of the property but their accuracy cannot be guaranteed, and they do not constitute an offer of contract. Intending purchasers must rely on their own inspection of the property. None of the above appliances/services have been tested by ourselves. We recommend purchasers arrange for a qualified person to check all appliances/services before legal commitment.
Contact Wych for more details